阿摩線上測驗
登入
首頁
>
圖學
> 96年 - 96 普通考試_技藝:圖學概要#50942
96年 - 96 普通考試_技藝:圖學概要#50942
科目:
圖學 |
年份:
96年 |
選擇題數:
0 |
申論題數:
5
試卷資訊
所屬科目:
圖學
選擇題 (0)
申論題 (5)
一、試解釋投影的基本觀念,及投影幾何的目的。(10 分)
二、試說明等角圖與等角投影圖的差異。(15 分)
三、自行設定一個簡單的「長方體狀」的立體造型,先畫出其三面圖後,再依此條件畫 出可以呈現造型特色的一點透視圖一個,及一個兩點透視圖。(本題共需繪出⑴三 面圖(5 分),⑵一點透視圖(15 分),⑶兩點透視圖(15 分)。)
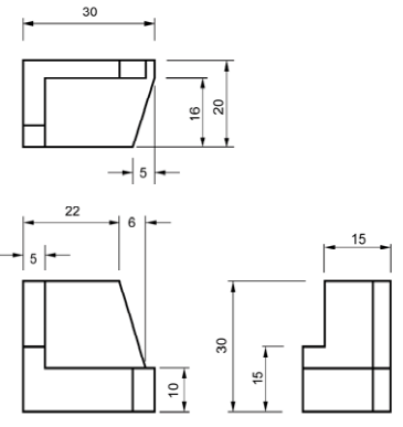
【已刪除】四、試依下列三視圖,繪出其等角圖。(尺度標示可省略)(20 分)
單位:mm
【已刪除】五、試依下列立體圖,繪出其三視圖,並標示尺寸。(20 分)
單位:mm
相關試卷
114年 - 114 公務升官等考試_薦任_技藝:圖學#133192
114年 · #133192
114年 - 114 普通考試_技藝:圖學概要#128725
114年 · #128725
113年 - 113 普通考試_技藝:圖學概要#121137
113年 · #121137
112年 - 112 普通考試_技藝:圖學概要#115317
112年 · #115317
111年 - 111 普通考試_技藝:圖學概要#109301
111年 · #109301
110年 - 110 公務升官等考試_薦任_技藝:圖學#103451
110年 · #103451
110年 - 110 高等考試_三級_技藝(選試陶瓷):圖學#102384
110年 · #102384
109年 - 109 普通考試_技藝:圖學概要#88706
109年 · #88706
108年 - 108 專技高考_測量技師:製圖學#80636
108年 · #80636
108年 - 108 公務升官等考試_薦任_技藝:圖學#80332
108年 · #80332